Продается коммерческая, 4066 кв.м., 1/2 эт
| Стоимость | 447 260 000 |
|---|---|
| Ремонт | Чистовая |
| Помещение занято | Нет |
| система пожаротушения | Есть |
| Вход cian | Общий с улицы |
| Состояние cian | Типовой ремонт |
| Тип парковки | На улице |
| Тип сделки авито коммерческая | Продажа |
| Планировка cian | Открытая |
| Планировка avito | Открытая |
| Право собственности | Собственник |
| Способ связи avito | По телефону и в сообщениях |
| Ремонт коммерческая | хороший |
| Тип отопления cian | центральное газовое |
| Тип дома cian | Каркасный |
| Вариант задания цены (avito) | за всё |
| Статус готовности | Строится |
| Тип коммерческой | Складское помещение |
| Площадь, кв.м. | 4066 |
| Этаж | 1 |
| Этажность | 2 |
| Класс здания | A |
| Населенный пункт | поселение Десёновское |
|---|---|
| Номер дома | 7/24А |
id 508
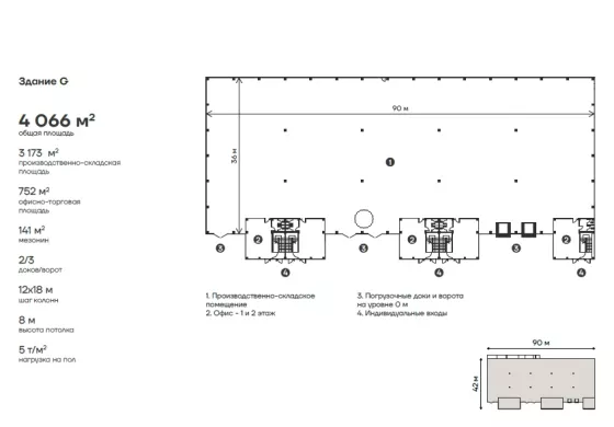
Продается отдельное здание G под пром-склад 4069 м2 . Срок сдачи в эксплуатацию - 2 кв. 2025 г. Так же есть в наличии блоки - складские помещения до 77311 м2.
В НАЛИЧИИ во второй очереди:
Блоки - Складские помещения от 565 м2 до 77301 м2 .
Стоимостью от 110 00 руб за 1 кв.м. НДС оплачивается сверху.
ВОЗМОЖНА АРЕНДА ИЛИ ПРОДАЖА ПО ПРОМЫШЛЕННОЙ ИПОТЕКЕ.
ХАРАКТЕРИСТИКИ:
ПРЕИМУЩЕСТВА:
Продажа здания целиком;
Собственная территория;
Собственная парковка в шаговой доступности;
ИНЖЕНЕРНЫЕ РЕШЕНИЯ:
Инфраструктура: КПП, парковки для легкового транспорта, грузовиков.
Коммуникации: электричество, газовое отопление, водоснабжение, канализация, связь, индивидуальные приборы учета.
Дополнительные вопросы по телефону.
Предоставляем услуги: разрешение на строительство, получения ТУ, изменения ВРИ (вида разрешенного использования), оценка участка и многие другие.

















